Runmolen 73

Alkmaar

Verkocht

Verkocht
27 Foto's 8 Plattegronden 5 360° foto's 1 Video
Op een ruim perceel van maar liefst 256 m2 mogen wij u aanbieden deze HOEKWONING met een mooie tuin + berging en parkeren op eigen terrein.
Rustig gelegen op een steenworp afstand van de bruisende binnenstad met al zijn voorzieningen woont u hier toch mooi in het groen.

Indeling begane grond:
entree-hal met meterkast (voldoende automaten en aardlekschakelaar). Royale en lichte L-woonkamer met erker en gas-openhaard, parketvloer en een schuifpui naar de achtertuin. De half open hoek-inbouwkeuken is voorzien van gasplaat + afzuigkap, magnetron, vaatwasser, koel-/vries-combinatie, Bosch vaatwasser. De bijkeuken is voorzien van betegelde vloer.
Het toilet bevindt zich in de binnenhal naast de trapopgang.

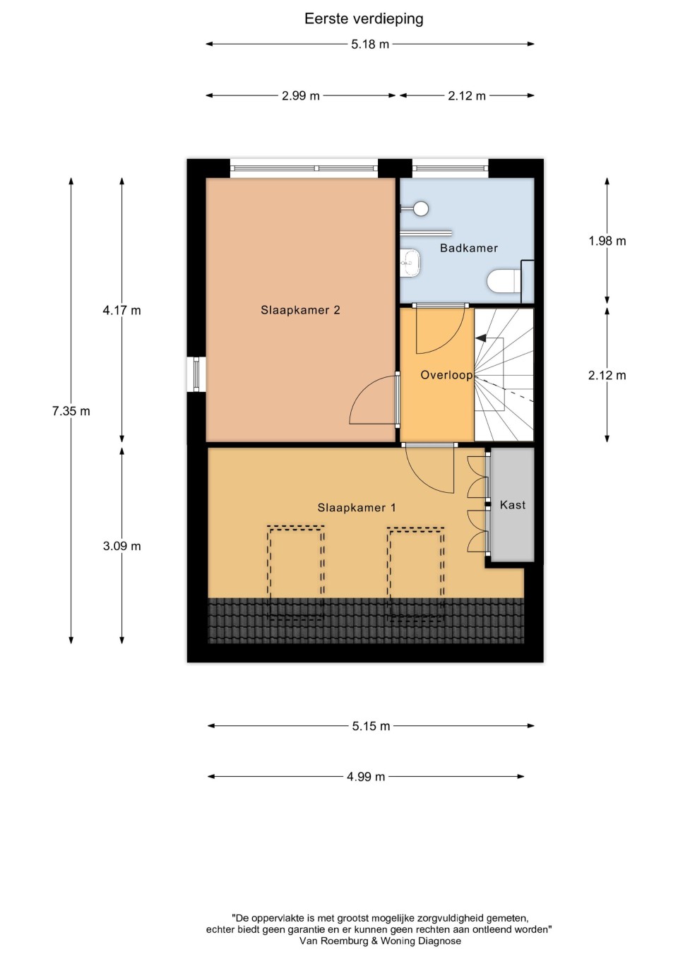
Indeling 1e verdieping:
overloop, 1 ruime slaapkamer aan de voorzijde met een vaste kastenwand en 1 slaapkamer aan de achterzijde. Moderne badkamer, vernieuwd in 2015, met een inloopdouche, wastafel en een 2e toilet. Verder is de badkamer voorzien van een raam voor de ventilatie en daglichttoetreding.

Indeling 2e verdieping:
vaste trap naar de overloop met stookruimte, CV-combiketel Nefit bouwjaar 2012 (lid ESNW).
Een ruime 3e slaapkamer is voorzien van een Velux-dakraam. Kleine vliering-ruimte is aanwezig.

Bijzonderheden/locatie aspecten:
- zeer ruim perceel grond voor een hoekwoning
- vlakbij de binnenstad gelegen, op loopafstand van alle belangrijke voorzieningen
- de woning is voorzien van zonnepanelen;

Kenmerken:
Bouwjaar: 1980
Perceeloppervlakte: 256 m²
Woonoppervlakte: 118 m²
Bruto inhoud: 423 m3
Isolatie: rondom dubbele beglazing en dakisolatie.

Bent u op zoek naar een woning op een rustige locatie gelegen met goede parkeergelegenheid?
Kom dan kijken op de Runmolen 73, wij leiden u graag rond.
Status Verkocht
Type Woonhuis
Bouwjaar 1980
Onderhoud buiten Goed
Onderhoud binnen Goed
Woonoppervlakte 118
Perceeloppervlakte 258
Inhoud 423
Aantal kamers 4
Aantal slaapkamers 4
Isolatie Dakisolatie, Dubbel glas
Voorzieningen Tv kabel
Garage Geen garage
Hoofdtuin Achtertuin
Aantal woonlagen 3
Dak Zadeldak
Bijgebouw Aangebouwd steen
Aanvaarding In overleg