Metiusgracht 17

Alkmaar

Verkocht

Verkocht
35 Foto's 6 Plattegronden 5 360° foto's 1 Video
Bent u op zoek naar een instapklare woning dan bent u hier van harte welkom in dit goed onderhouden karakteristieke HERENHUIS met 3 slaapkamers en een werkkamer, gelegen op een mooie locatie aan de Metiusgracht, direct bij de Alkmaarder Hout en op korte loopafstand van het centrum van de oude binnenstad.

Kenmerken:
* Het huis is een gemeentelijk monument.
* De woning beschikt over originele details zoals o.a. hoge plafonds.
* CV-gas: Intergas combi-ketel 2022.
* Voorzien van dakisolatie, gedeeltelijk dubbele beglazing en airco-unit.
* Mechanische ventilatie.
* Geheel gerenoveerd in 2021.

Gegevens:
* Woonoppervlakte: 91 m2.
* Overige inpandige ruimte: 11 m2.
* Gebouw gebonden buitenruimte: 10m2.
* Bruto inhoud: 399 m3.
* Grondoppervlakte: 123 m2.

Omschrijving:
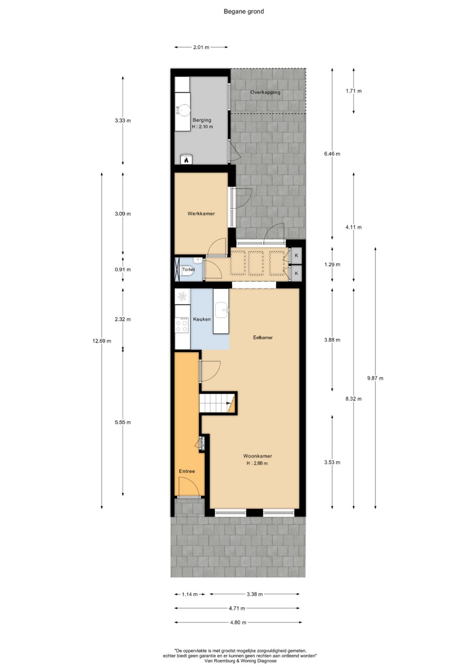
parterre:
entree/gang, meterkast met voldoende automaten, garderobe.
De L-woonkamer is voorzien van een Ethanol-openhaard, laminaatvloer op de betonvloer en aan de achterzijde is de open inbouwkeuken met een 5-pits gasplaat met oven, afzuigkap, vaatwasser en een
koel-/vrieskast.
Aan de achterzijde is een uitbouw, welke is voorzien van antraciet tegelvloer en een vaste kast voor de wasmachineaansluiting.
De openslaande tuindeuren geven toegang naar de achtertuin met een achterom via de naastgelegen steeg.
In de aanbouw is een mooie werk-/studeerkamer en een toiletruimte met een wandcloset, fonteintje, antraciettegelvloer en lichte wandtegels.

1e verdieping:
de overloop is voorzien van een zijraam en een werkplek.
1 Ruime slaapkamer aan de voorzijde met 3 vaste kasten en een airco-unit.
De moderne badkamer is bereikbaar vanaf de overloop en voorzien van een inloopdouche, wastafel met ombouw en 2e wandcloset, lichte betegeling, stucplafond met inbouwspots en een design-radiator alsmede mechanische ventilatie.
2 Slaapkamers (1 ruime en 1 kleine slaapkamer) aan de achterzijde, waarvan 1 kamer voorzien van openslaande balkondeuren naar het balkon aan de achterzijde.

2e verdieping:
de bergzolder is bereikbaar via een vlizotrap.
De zolder heeft een raam in de achtergevel en een dakraam. De nokhoogte is ±160 cm.

Achtertuin:
in de achtertuin is de stenen schuur voorzien van aansluiting elektriciteit, water en een radiator. Alhier is de CV-unit geplaatst.
Achterin de tuin is een heerlijke lounge-hoek met privacy. Een achterom is aanwezig.

Metiusgracht 17 is een instapklaar woonhuis met een fijne tuin op een goede locatie. Wij nodigen u van harte uit om deze woning te komen bezichtigen.
Status Verkocht
Type Woonhuis
Bouwjaar
Onderhoud buiten Goed
Onderhoud binnen Goed
Woonoppervlakte 91
Perceeloppervlakte 123
Inhoud 399
Aantal kamers 4
Aantal slaapkamers 4
Isolatie
Voorzieningen Mechanische ventilatie, Tv kabel
Garage Geen garage
Hoofdtuin Achtertuin
Aantal woonlagen 3
Dak Zadeldak
Bijgebouw Aangebouwd steen
Aanvaarding In overleg