Westerweg 161

Alkmaar

Verkocht

Verkocht
31 Foto's 8 Plattegronden 7 360° foto's 1 Video
Op een mooie locatie bieden wij een vrijstaande ERKERWONING aan, uit 1930, op een perceel van 205 m² eigen grond. Deze sfeervolle vrijstaande woning is gelegen in Alkmaar-Zuid, dichtbij de "Alkmaarder Hout", het "Heilooër-bos" en op fietstafstand van het centrum van Alkmaar met alle voorzieningen.
Een heerlijk vrije achtertuin van ruim 17 meter diep op het oosten gelegen met veel mogelijkheden tot uitbouw van het huis.

Gunstige ligging t.o.v. de Ring rondom de stad en de rotonde A-9 richting Amsterdam/Schiphol.

Kenmerken:
- woonoppervlakte: 105 m2
- overige inpandige ruimte: 12 m2
- externe bergruimte 11 m2
- bruto inhoud: 448 m3
- grondoppervlakte: 205 m2

Voorzieningen:
- dubbele beglazing
- dakisolatie + panlatten (aangebracht en vervangen in 2022)
- spouwmuurisolatie en vloerisolatie aangebracht in 2010
- CV-gas: Remeha combi-ketel bouwjaar 2006 met controle door het ESNW
- meterkast met 5 groepen en aardlekschakelaar
- voor- en achtergevel zijn opnieuw gevoegd
- energielabel: D.

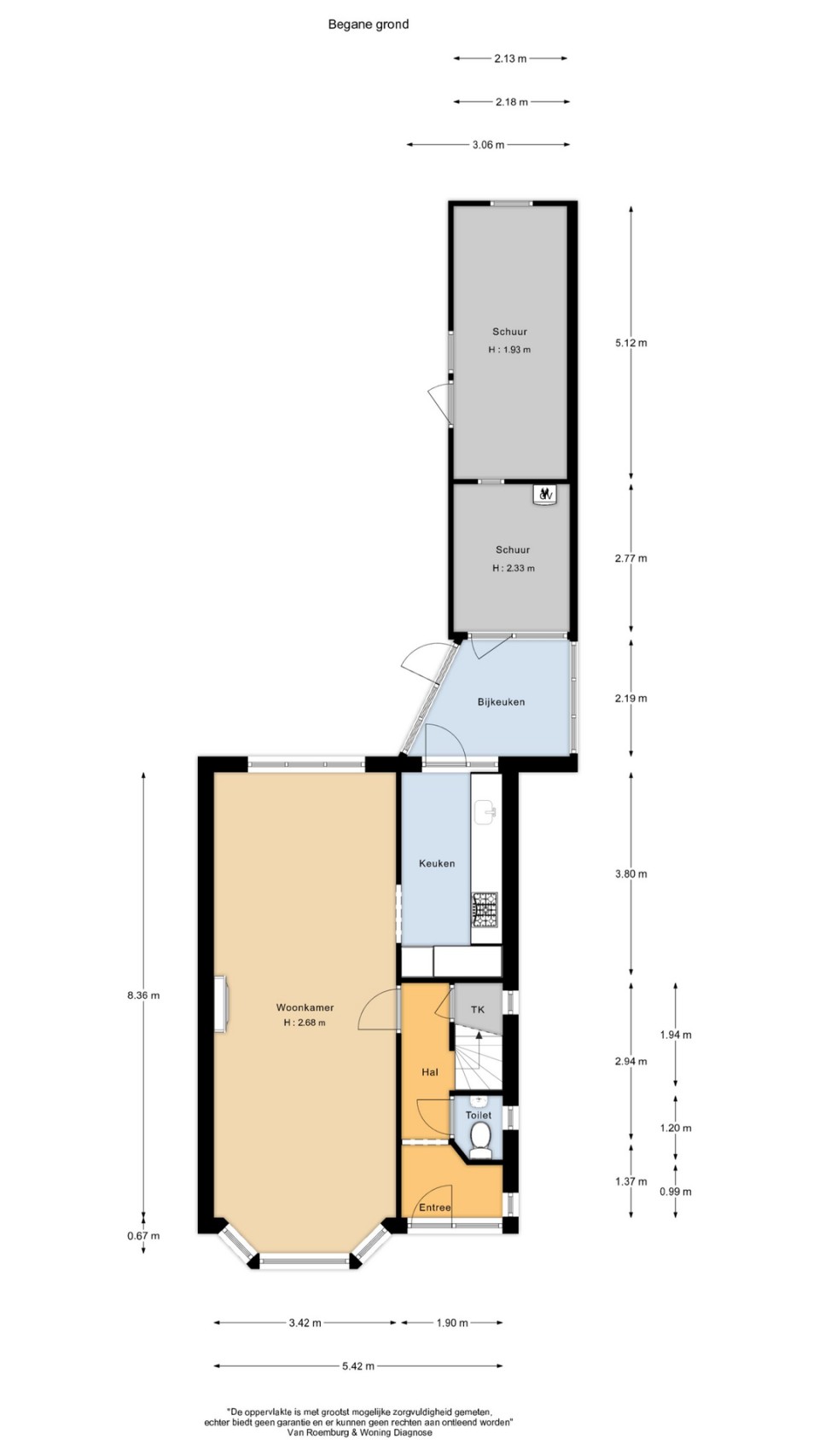
Indeling:
entree-hal voorzien van Solnhofer tegelvloer, meterkast, provisiekeldertje, wc met wandcloset, lichte betegeling en een raampje.
Royale woonkamer met een mooie erker (gerenoveerd in 2008) en een eikenvloer: Warrant Rhine vloerdelen gelegd in 2008, stucwanden, stucplafond en een houtkachel.
De dichte inbouwkeuken is voorzien van granieten aanrechtblad en diverse apparatuur: 5-pits gasfornuis, rvs-afzuigkap, vaatwasser, koel-/vrieskast uit 2020.
Vanuit de keuken heeft u toegang tot de bijkeuken met een buitendeur naar de heerlijke achtertuin met verrassend veel privacy. Extra achterdeur naar de naastgelegen steeg naar de Westerweg.
In de aangebouwde stenen berging is de CV-unit geplaatst.
In de achtertuin staat nog een extra houten berging voor de fietsen en/of het tuingereedschap.
Een achterom is hier ook aanwezig.

Eerste verdieping:
overloop met een zijraam en 3 slaapkamers voorzien van stucplafonds en een badkamer.
1 Ruime slaapkamer aan de voorzijde met vaste kast, 1 ruime slaapkamer aan de achterzijde met twee (flinke) vaste kasten.
1 Kleinere slaapkamer aan de voorzijde.
De badkamer is voorzien van een douchecabine, ligbad, 2e wc, wastafel, betegeling en een raam is aanwezig.

Tweede verdieping:
vaste steektrap naar de overloop met een dakraam en een wastafel.
1 Slaapkamer aan de voorzijde met een dakraam en raam in de voorgevel.
1 Slaapkamer aan de achterzijde met dakraam en raam in de achtergevel.

Bent u op zoek naar een vrijstaande erkerwoning in een mooie groene woonomgeving dan nodigen wij u van harte uit om een afspraak met ons te maken, wij leiden u graag rond op de Westerweg 161.
Status Verkocht
Type Woonhuis
Bouwjaar 1935
Onderhoud buiten Goed
Onderhoud binnen Redelijk tot goed
Woonoppervlakte 105
Perceeloppervlakte 205
Inhoud 448
Aantal kamers 6
Aantal slaapkamers 6
Isolatie
Voorzieningen Tv kabel, Rookkanaal, Dakraam
Garage Geen garage
Hoofdtuin Achtertuin
Aantal woonlagen 3
Dak Zadeldak
Bijgebouw Aangebouwd steen
Aanvaarding In overleg